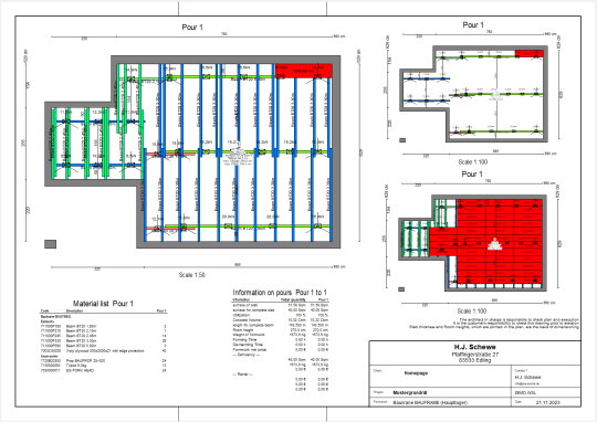
Baukrane, Bautekk coffrage

EUR 450,00

hors taxes plus frais de port

Entrepôt de coffrage pour EuroSchal. Vous devez maintenant encore ajouter un programme de coffrage mural en version complète ou mise à jour.